


OFFRE A SAISIR - Villa disponible immédiatement, ne passez pas à coté de cette belle opportunité!
Pour vérifier votre éligibilité, cliquez ici : https://www.dixit-oi.re/simulateur-psla
MODALITES DE REMISE DES OFFRES D’ACHAT :
Pour accéder au dossier de candidature, cliquez ici : https://www.dixit-oi.re/acheter-en-location-accession
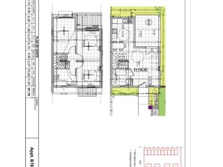
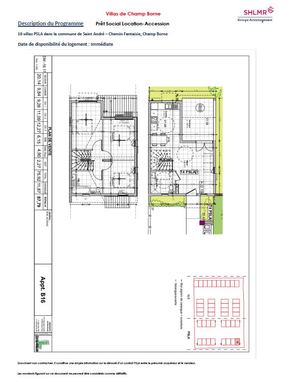
Code : VCHB Logement : 16
Les dossiers complets devront être transmis par mail à agence.immobiliere@shlmr.fr, contre accusé de réception au plus tard le 19 mars 2026 à minuit.
Pour plus d'informations, n'hésitez pas à nous contacter en cliquant sur le bouton « Je suis intéressé ».
Située dans un quartier résidentiel calme de Saint-André, LES VILLAS DE CHAMP BORNE offrent un cadre de vie approprié aux familles.
Chaque villa dispose d’1 stationnement, d’un jardin et de prestations intérieures de qualité.
LOCALISATION :
Ce programme immobilier est soumis au dispositif de location accession avec comme avantage fiscal une TVA à taux réduit au moment de l’achat ainsi qu’une exonération de la taxe foncière sur le logement de 10 ans.